Asesoría experta para tu proyecto
Consultoría, Diseño y Master Plan


Consultoría Especializada
En Parques Acuáticos Latinoamérica analizamos y diseñamos proyectos a la medida que maximizan tu inversión. Con un equipo de expertos, te ofrecemos asesoría técnica y estratégica para garantizar que tu parque, piscina o atracción acuática sea seguro, innovador y altamente atractivo para tus visitantes.
Diseño Arquitectónico
El diseño es la base de un proyecto exitoso, y lo hacemos visible desde el primer trazo. Nuestro equipo de arquitectos e ingenieros desarrolla propuestas funcionales, creativas y seguras, complementadas con renders 3D fotorrealistas que permiten anticipar cómo lucirá tu parque, piscina o atracción acuática terminada.




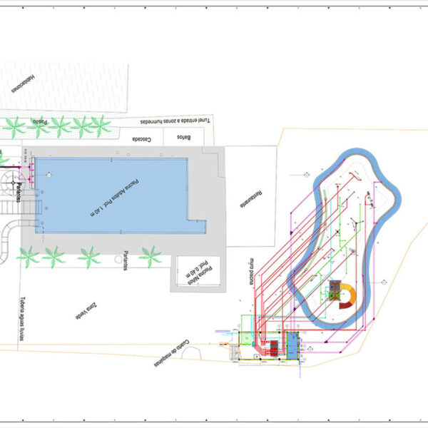
Master Plan
Todo gran proyecto inicia con una planeación estratégica. El Master Plan establece la hoja de ruta completa para tu parque acuático. Definimos desde la ubicación de cada atracción, zonas de servicios y áreas verdes, hasta la capacidad de carga de visitantes que asegura un equilibrio entre diversión, seguridad y operación eficiente.
































